盘活小户型旧物业,挖掘长租公寓每平方价值
窝趣公寓打造了一款低于市场平均投资成本18%的产品,并创造了开业后平均房价较托管前提升了48%,仅预售期就达成满房的佳绩。
小户型物业是长租公寓最常见的一种。小户型虽然面积小,但要改造成长租公寓,功能可一个都不能少,其中储物是一直最受租客关注却最令设计师头疼的问题。
对于小户型来说,盘活畸零空间,极尽挖掘每一平方的利用价值是重中之重。论如何改造,榨干每一寸空间,寸土寸金的深圳最有代表性。今天的案例就是窝趣公寓位于深圳市宝安区一个城中村的小户型改造。
窝趣深圳西乡地铁站公寓位于广东省深圳市宝安区宝莲新村,原本是以蓝领群体为主的普通出租屋,托管给窝趣后,通过窝趣产品设计师与产品供应商(家具、家电和照明)的通力合作,窝趣公寓打造了一款低于市场平均投资成本18%的产品,并创造了开业后平均房价较托管前提升了48%,仅预售期就达成满房的佳绩。




嵌入式扩容法

对于小户型空间传统方式是增加储物柜,不仅造价高还会占据很大面积,显得十分拥挤。
将储物空间嵌入家具做到一物多用,能释放出更多的活动空间。

比如,窝趣公寓产品供应商将沙发底的空间设计用作储物,质量好,成本几乎没有变化,大大扩展小型空间的使用率,提升投资回报效益。

利用床底空间储物。

因势利导扩容法

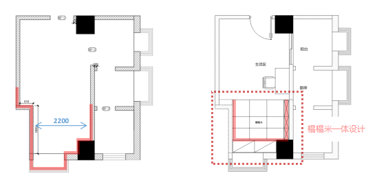
1.利用榻榻米隐形空间扩容
原物业户型并不方正,结构造成室内有很多转角,为了弱化结构缺点,更好的规整空间,窝趣选择用榻榻米形式的床,而榻榻米本身就非常好利用做为强储物空间设计。

2200长的空间,做成榻榻米+储物柜一体式的设计最适合不过,让床、储物柜可以很好的联结起来,更节省空间。

收平了因原始梁位、柱位造成的各种室内阳角,又极大的扩充了储物功能性,一举两得。

2. 利用飘窗扩容
将原飘窗做利用,增加储物空间,就能多出几平方的储物空间。搭配床使用,即可作为床边储物,又可作为休闲桌面,使用舒适度大大提升。


见缝插针扩容法

利用畸零空间安插定制小柜
为保证放置符合人体工学的舒适床榻,在布局上因尺寸问题出现了一个鸡肋小空间,设计师见缝插针在此处安插定制小形储物柜,美观又实用。

0
搜索

搜索