郑州城发开元美寓介绍(四批次)
郑州城发开元美寓介绍(四批次)
开元美寓户型配置
【设计】全屋精装交付,拎包入住,装修风格温馨、简约、明亮。房间配置依据户型设计有所调整,以实际为准。
【户型】本批次配租房屋共约980套、980间房源,位于中海怡然苑6号楼及8号楼,均为面积区间为44-73㎡的一室LOFT户型,总体价格区间751-1028元/月。实际房间面积以郑好办公示为准。


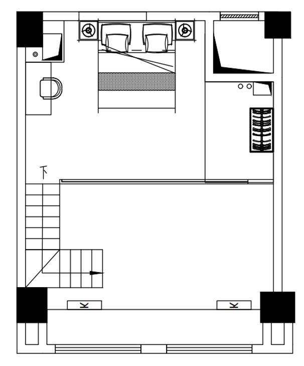
A户型首层平面图

A户型二层平面图

B户型首层平面图

B户型二层平面图

C户型首层平面图 
C户型二层平面图
【家具】床、床垫、床头柜、衣柜、沙发、茶几、书桌、椅子、晾衣架、窗帘。
【家电】空调、滚筒洗衣机、冰箱、抽烟机、热水器 ,采用一线品牌全屋家电。
【卫生间】卫浴、镜柜。
【智能化】人脸识别门锁、智慧管理系统平台。房间配置依据户型设计有所调整,以实际为准。






开元美寓人才之家
【人才之家】600㎡超大空间人才之家共享配套 ,位于5号楼1层、2层。
【功能设置】设置有自习室、共享办公区、健身区、活动室等多样化“自我充电”生态场景,休 闲、娱乐、学习、社交功能齐全,推进邻里交往,满足青年群体对美好生活的向往。

开元美寓周边概况
【地址】惠济区,文化路西、大河路南。
郑州城发开元美寓人才公寓
河南省郑州市惠济区迎宾路街道文化北路330号
【交通】毗邻地铁7号线(东赵站),新城路文化路站:90/S506;新城路文晖路站6/Y6/62;惠济万达站Y26等。
【学校】河南牧业经济学院、郑州师范学院、郑州四中迎宾中学、郑州市京广实验学校等。
【医院】惠济区人民医院、郑州市惠济区迎宾路、新城路、文运社区、卫生服务站。
【商业】惠济万达广场、国基大学城生活园区、月湖广场、郑北商城、美景·欢乐广场、鹏翔商业中心。
【公园】月湖公园、惠济中央公园、小象动物公园、古树苑健康主题公园、勤学公园。

选择开元美寓四大优势
【品牌优势】行业优选,实力护航。城发“美寓”人才公寓拥有雄厚的行业背景、强劲的品牌实力、前沿的经营理念。“筑巢引凤”,旨在树立行业“新标杆”,全面打造高品质人才公寓,为人才提供舒心、开心、放心、省心、贴心的生活环境。

【管理优势】团队服务、居住安心。城发“美寓”人才公寓拥有专业管理员团队,项目配备日常管家,定期培训。多方位关注人才生活与发展,并举办特色主题活动,循序搭建开放、共融、共享、共创的生活平台。

【产品优势】高标选配,精装交付。全屋装修采用一线品牌,配备淋浴照明系统,智能门锁搭载人脸识别系统。

【区位优势】生态优越,配套丰富。项目紧邻月湖公园 ,惠济中央公园,黄河之滨,自然生态环境优越。周边分布学校、社区卫生服务中心、公园、大学、大型购物广场等,配套丰富多样。

开元费用及注意事项
【租金押金】租金751-1028元/月,月度缴付;押金2000元。
【租期】1-3年,续租、退租需提前申请,满足条件可续租至45岁。
【费用】物业费2.4元/㎡/月,电费0.56元/度,水费4.4元/吨。
【网络】免费预装网络。
【停车】详情请咨询物业。(物业咨询热线:0371-55112151)
【提醒】美寓系列项目所有房源为我方国企直租,不存在中介及第三方机构,请勿相信“收取服务费、介绍费”,不存在“租赁后可购买”,特此提醒,请勿上当受骗。
【咨询】项目咨询热线:4001261666、16668123593
申请条件及流程


0
搜索

搜索